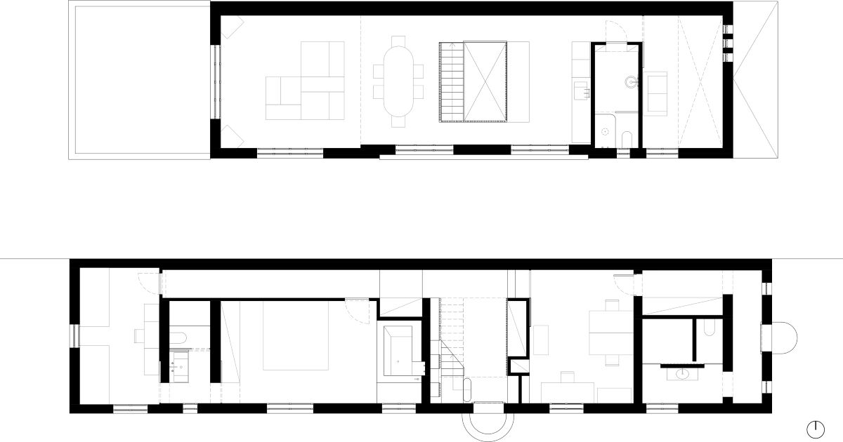
Pôdorysy domu.
28 / 30

Pôdorysy domu.

Zdroj: Piano B Architetti Associati

Späť na článok:

Neuveríte, že táto budova bola kedysi stajňou! Zvonku vyzerá ako vila, vo vnútri prekvapí vidieckou atmosférou

28 / 30