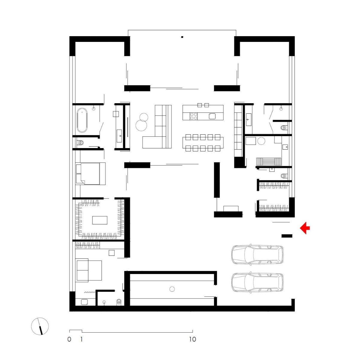
Pôdorys.
18 / 20

Pôdorys.

Zdroj: Pokorny Architekti.

Späť na článok:

Dom v Čachticiach je radikálne iný. Mladí chceli žiť po svojom, architekt im miesto tradície vytvoril úžasné bývanie

18 / 20