Späť na článok:

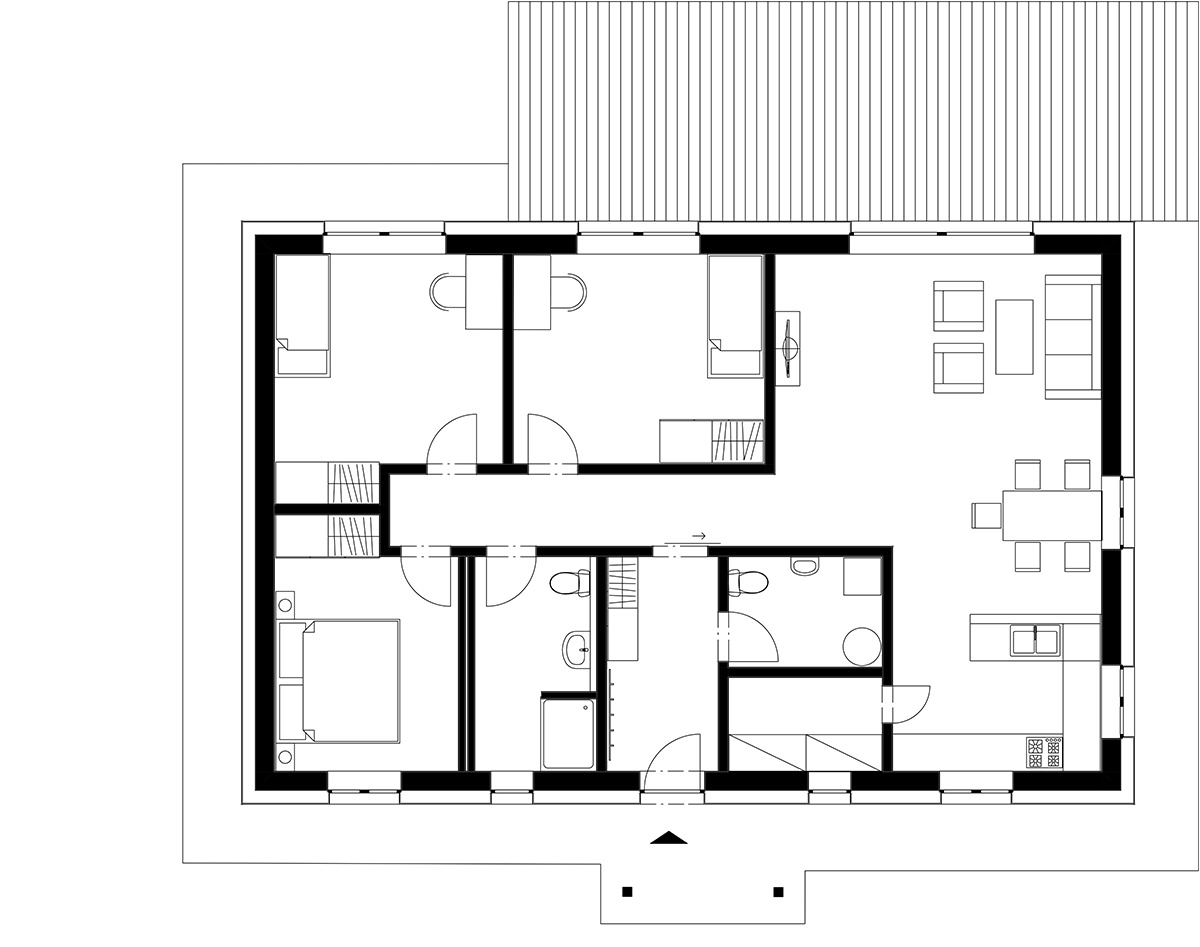
Projekt rodinného domu Bungalov K1