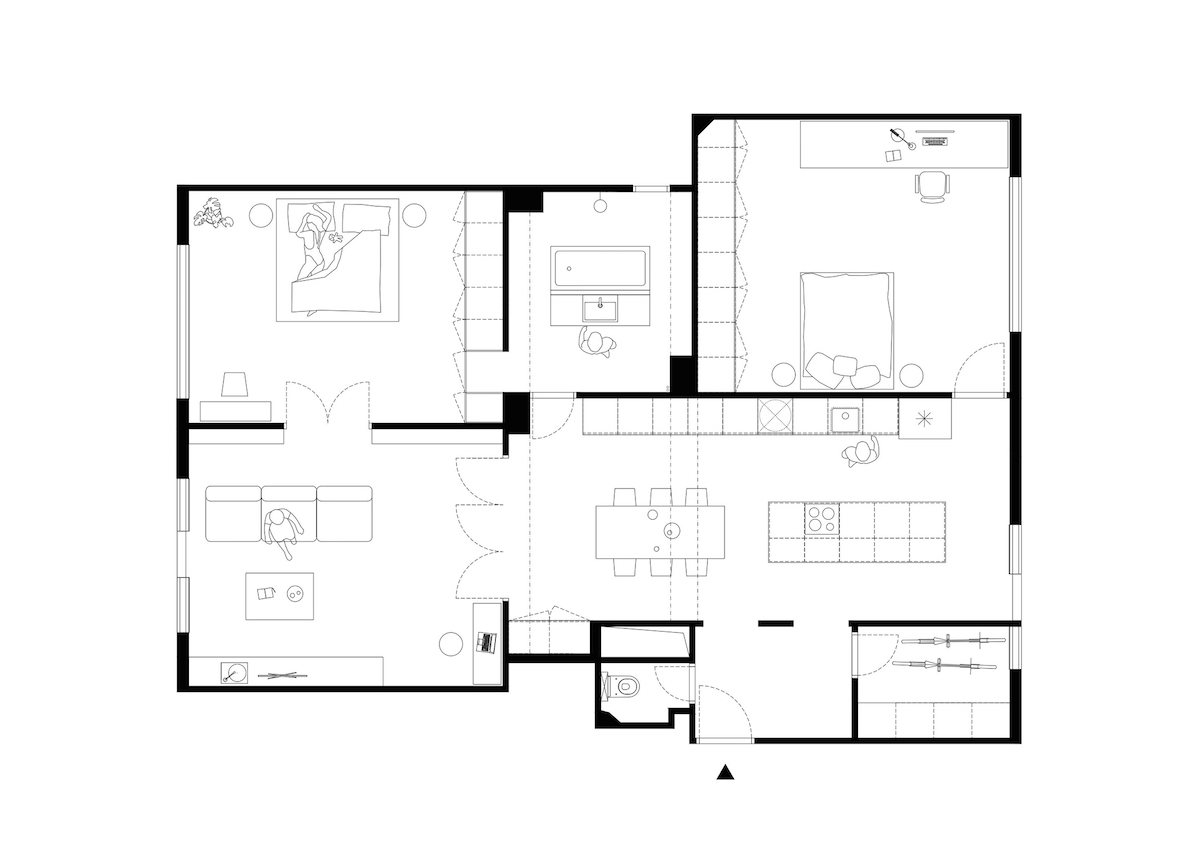
Pôdorys po rekonštrukcii.
14 / 15

Pôdorys po rekonštrukcii.

Zdroj: NOIZ.SK architekti

Späť na článok:

Rekonštrukcia bytu na Šancovej: Nadčasový koncept, dômyselné detaily a preč s hluchými priestormi, ktoré interiér dusili

14 / 15