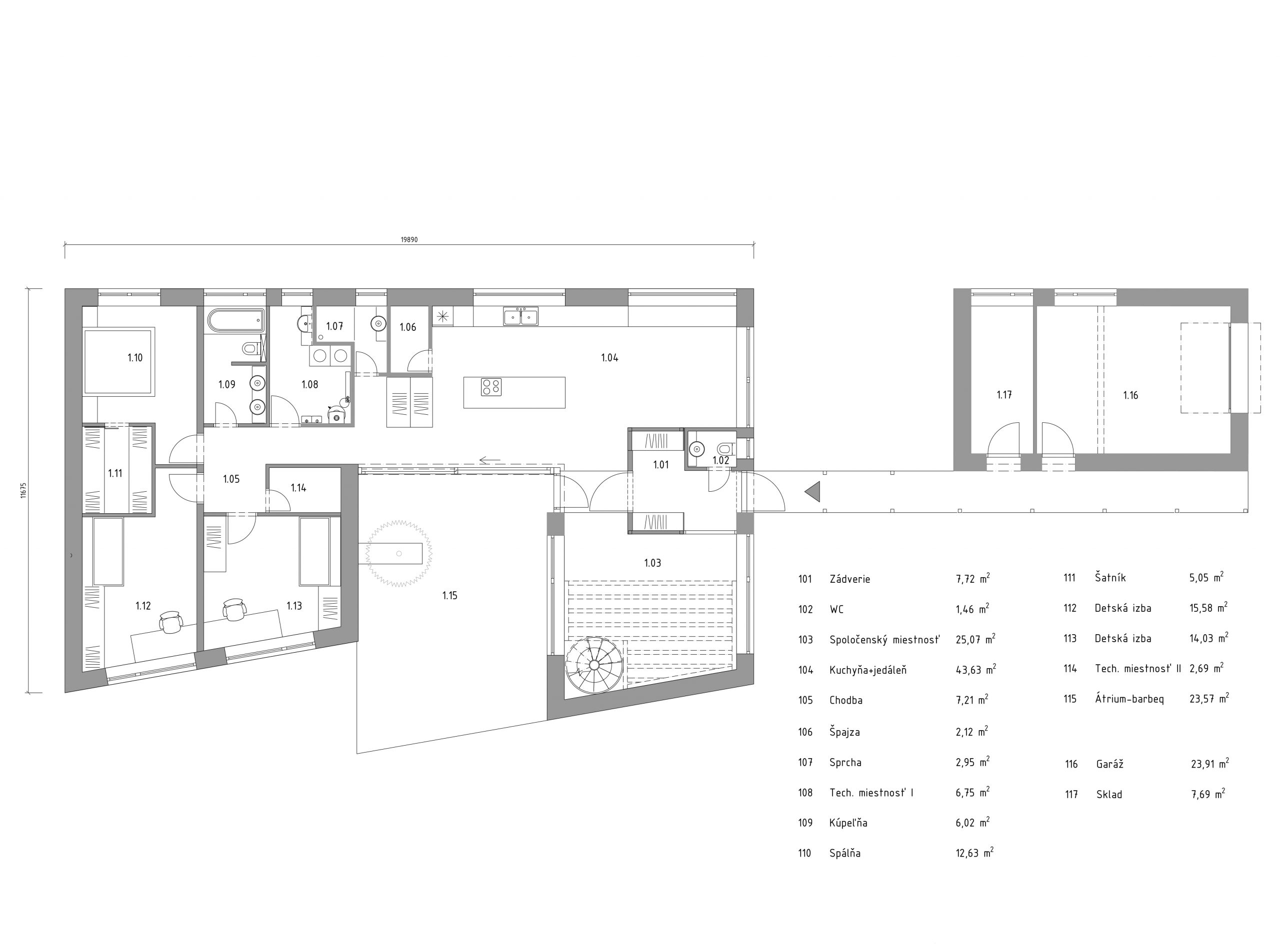
Pôdorys.
11 / 12

Pôdorys.

Zdroj: Treea.sk

Späť na článok:

V malom rodinnom dome v Rajci vytvorili súkromie aj tam, kde to bolo takmer nemožné

11 / 12