1 / 18

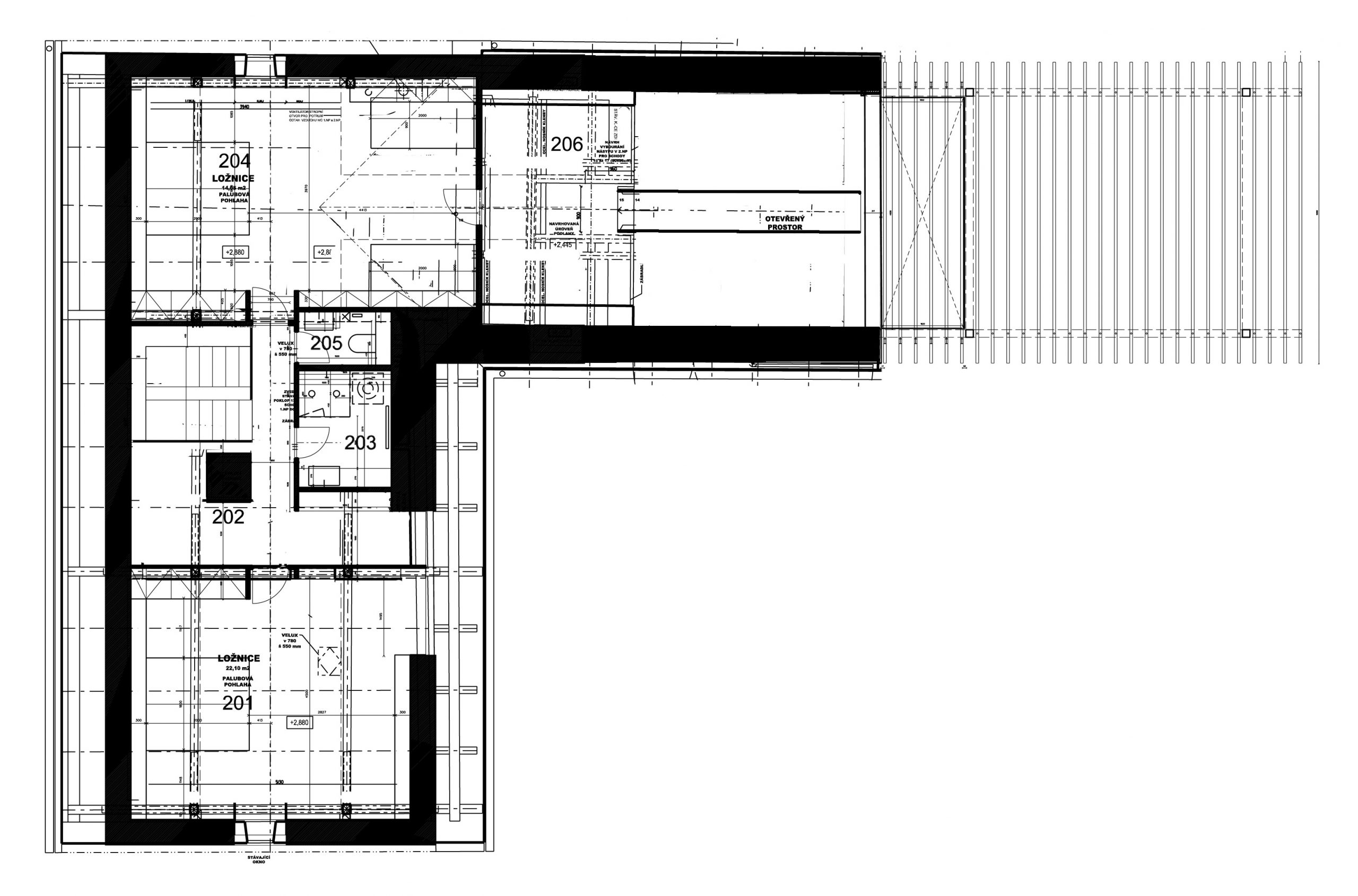
Pôdorys 2. NP.

Zdroj: Ing. arch. MgA. Michal Motyčka

Späť na článok:

Ako prepojiť moderné prvky s duchom starej chalupy

1 / 18