Projekt prízemného rodinného domu LAGUNA19
Projekt prízemného rodinného domu LAGUNA19 od firmy PROmiprojekt.
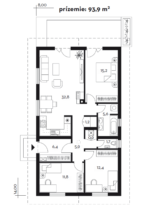
Popis projektu
Počet osôb: 4
Obytné miestnosti: 4
Úžitková plocha: 93,9 m2
Obytná plocha: 72,2 m2
Zastavaná plocha: 112,0 m2
Obostavaný priestor: 460,0 m3
Orientácia vstupu: V, JV, J
Spotreba energie: 49 kWh/(m2 . rok)


Cenník
Cena za dodávku na kľúč: 153 100 €
Cena pri realizácii svojpomocne: 88 800 €
Cena projektu: 1 650 €
Obsah projektu: I, II, IV





PROmiprojekt, s.r.o.
Autor: Ing. Milan Vorčák
Lamačská cesta 45, 841 03 Bratislava
tel.: +421 911 152 886
e-mail: promi@promiprojekt.sk
www.promiprojekt.sk
Obsah projektu:
I. architektonicko-stavebné riešenie (1 – sprievodná technická správa, 2 – prehľad stavebných materiálov, 3 – orientačný rozpočet, 4 – stavebné výkresy (výkopy, pôdorysy, rezy, pohľady, detaily) v mierke 1 : 100, resp. 1 : 50, 5 – oplotenie)
II. vnútorné inštalácie (6 – vykurovanie, 7 – voda, 8 – kanalizácia, 9 – plyn, 10 – elektroinštalácia)
III. prípojky inžinierskych sietí od uličných rozvodov k domu
(11 – voda, 12 – kanalizácia, 13 – elektrina, 14 – plyn)
IV. statika
V. iné (15 – celková situácia v mierke 1 : 200 so zakreslením objektu, okótovaním inžinierskych sietí a terénnych úprav, 16 – rozvinutý uličný pohľad s okótovaním od susedných objektov)


















