Nájdete tu pohodu, relax aj prírodu. Moderná chata prináša útulnosť aj tradičnú horskú dušu, výsledok si nás získal
Chalupa v Jizerských horách spája tradičný horský charakter s moderným interiérom. Precízne stolárske spracovanie tmavej dubovej dyhy kontrastuje so svetlou dubovou podlahou. Dopĺňa ho kachľová pec a veľkorysý jedálenský stôl. Interiér pôsobí jednoducho, funkčne a útulne, no zároveň prekvapuje detailmi.
Na prvý pohľad pôsobí ako tradičná chalupa v Jizerských horách. Pravdou však je, že ide o novostavbu, ktorá si našla spôsob, ako sa nenápadne zaradiť medzi typickú horskú zástavbu. No vnútri vás čaká prekvapenie – moderný interiér, ktorý si zachováva útulnosť a teplo klasickej drevenice.
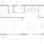
Spoločenské prízemie
Prízemie chalupy je venované spoločnému životu. Kuchyňa s veľkým stolom až pre desať ľudí, obývačka a jedáleň vytvárajú jeden otvorený priestor, ktorý sa prirodzene stáva centrom diania. Hlavným prvkom je trámový strop z tmavého dreva, ktorý kontrastuje so svetlou podlahou. Do estetiky vstupuje aj remeselná precíznosť – atypické stolárske prvky či vínotéka, ktorá elegantne obopína schodisko.
Srdce v kachľovej peci
Dominantou dennej zóny je kozub. Okolo nej sa sústreďujú rôzne podoby odpočinku – gauč na rodinné leňošenie, lavica s výhľadom na krajinu či kreslo s pohľadom priamo na oheň. Všetko pôsobí prirodzene, akoby tento priestor vznikal dlho a spontánne, nie podľa presných plánov.

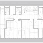
Spálne v podkroví
Horné podlažie patrí pohodliu v súkromí. Nájdete tu spálne otvorené do krovu, kde vynikajú odkryté krokvy a drevené podbitie. Tento detail dodáva miestnostiam vzdušnosť a jedinečný charakter, presne to, čo od horskej chalupy
Útulnosť v modernej podobe
Architekti stavili na jednoduchosť a funkčnosť, no nikdy nie na úkor atmosféry. Prírodné materiály, kontrasty tmavého a svetlého dreva a jemné kovové detaily vytvárajú interiér, ktorý je rovnako praktický ako krásny. Je to chalupa v nádherných horách, ktorá spája dva svety, tradíciu a modernu, a robí to tak prirodzene, akoby to bolo odjakživa. Ponúka nielen komfort pre päťčlennú rodinu, ale aj jasný dôkaz, že moderný životný štýl môže ísť ruka v ruke s horskou tradíciou.

Jedáleň
Predstavte si večeru s priateľmi či rodinou pri veľkom drevenom stole, kde sa každý kútik napĺňa svetlom a príjemnou atmosférou. Jedáleň je navrhnutá tak, aby podporovala komunikáciu a rodinnú pohodu, pričom spája moderný dizajn s tradičnými prírodnými materiálmi. Každý detail – od stoličiek po osvetlenie – tu má svoj význam.
Kuchyňa
Premyslené usporiadanie skríň a pracovných plôch zabezpečuje, že všetko je poruke a varenie sa stáva radosťou. Otvorená dispozícia umožňuje komunikáciu s obývacou časťou, takže sa necítite osamotení ani pri príprave večere pre hostí.

Obývačka
Sadnite si do pohodlného kresla a nechajte sa objať teplom praskajúceho krbu. Tento kútik nie je len o komforte – je to miesto, kde sa čas spomaľuje a káva či čaj chutí lepšie. Drevo všade naokolo, mäkké textílie, biely keramický obklad krbu a tlmené svetlo vytvárajú atmosféru, ktorá pozýva na chvíle oddychu.
Denná zóna
Vstúpte do priestrannej dennej zóny, kde sa moderný komfort stretáva s hrejivou atmosférou dreva. Veľké okná vás okamžite spoja s okolitou prírodou Jizerských hôr a stropné trámy pridávajú pocit útulnosti. Miesto, kde rodina trávi najviac spoločného času.

Kúpeľňa
V kúpeľniach sa spája elegancia s funkčnosťou. Čisté línie, kvalitné obklady a moderné zariadenia vytvárajú priestor, kde si môžete dopriať relaxačný kúpeľ alebo rýchlu rannú rutinu bez stresu. Spálňa má vlastnú kúpeľňu priamo v izbe len pár krokov od postele.
Spálňa
Prírodné materiály a jemné textílie vytvárajú útulnú atmosféru aj v podkroví, ktoré patrí priestoru na oddych v súkromí. Každý detail je navrhnutý tak, aby pôsobil esteticky a navodzoval pocit relaxu. Tu si môžete dovoliť zhlboka dýchať a načerpať energiu do nového dňa.

Projekt súťažil o ocenenie Interiér roka 2024. Víťazov vyhlásili 29. apríla 2025 v pražskej galérii moderného umenia Dox. Pozrite sa, kto bol nominovaný a kto vyhral, na www.interierroku.cz.

RD Jizerky
Autori: Ing. et Ing. arch. Lukáš Janout, Ing. arch. Nina Ratočka Pevná
Architektonický ateliér: Luni architekti, s. r. o.
Lokalita: Jizerské hory, Česko
Úžitková plocha: 250 m2
Projekt: 2021
Realizácia: 2023
Zdroj: časopis Môj dom


























